Rif: IMMO-124949165
GENZANO DI ROMA
ROMA € 70.000- Appartamento
- Vendita
- 44 Mq
- 2 Vani
- 1 Camere
- 1 Bagni
- EPI: 175 kwh/m2 anno
- Classe energetica: G
- Descrizione
- Dettaglio immobile
- Consistenze
- Mappa
- Planimetrie
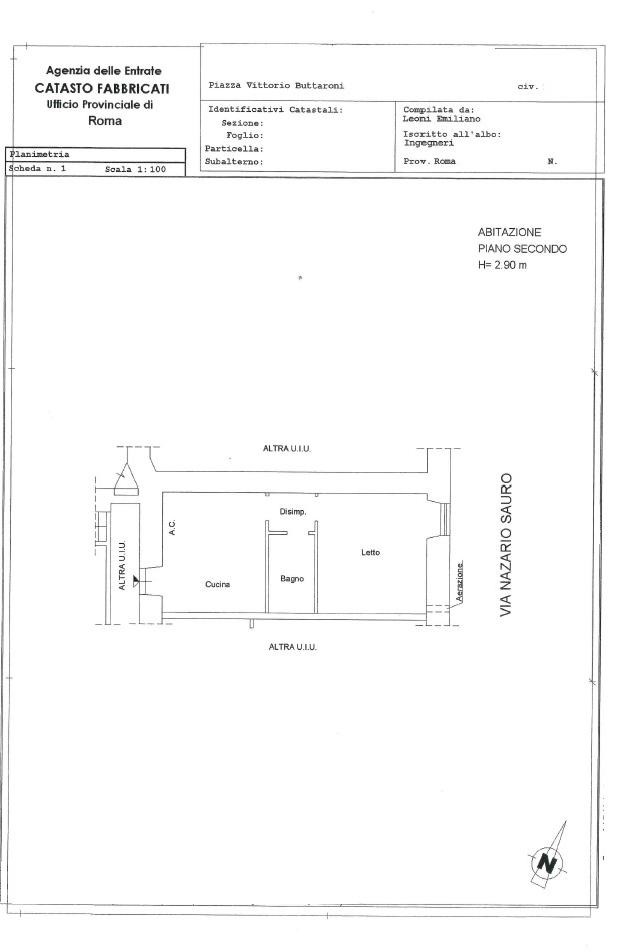
Nel cuore del Centro Storico del Paese proponiamo in vendita un grazioso appartamento ubicato al 1° piano (catastalmente 2°) dello stabile (sono solo 26 gradini), non servito da ascensore.
L'appartamento si sviluppa su una superficie complessiva di circa 44 mq ed è composto da soggiorno con angolo cottura in muratura, disimpegno, camera da letto matrimoniale con affaccio su Via Nazzario Sauro, bagno cieco con vasca e soppalco in legno con scala d'accesso nella zona giorno (il soppalco non ha regolare autorizzazione).
L'immobile si presenta in buone condizioni generali dovute ad una ristrutturazione recente dell'intero fabbricato tra il 2022 ed il 2023; in particolare è caratterizzato da portone blindato, infissi in alluminio bianco con vetrocamera, persiane in alluminio, pavimentazione in Grés Porcellananto effetto cotto ed in laminato sul soppalco, impianto elettrico in corrugato con salvavita, appartamento termo-autonomo, alimentato con gas Metano, impianto termico in rame con radiatori in alluminio bianco, caldaia della “Riello” posizionata all'interno, cassone di riserva idrica in acciaio, il tetto del fabbricato ed i solai, in legno, sono stati completamente rinnovati.
La Richiesta è di Eu. 70.000,00
L'appartamento si sviluppa su una superficie complessiva di circa 44 mq ed è composto da soggiorno con angolo cottura in muratura, disimpegno, camera da letto matrimoniale con affaccio su Via Nazzario Sauro, bagno cieco con vasca e soppalco in legno con scala d'accesso nella zona giorno (il soppalco non ha regolare autorizzazione).
L'immobile si presenta in buone condizioni generali dovute ad una ristrutturazione recente dell'intero fabbricato tra il 2022 ed il 2023; in particolare è caratterizzato da portone blindato, infissi in alluminio bianco con vetrocamera, persiane in alluminio, pavimentazione in Grés Porcellananto effetto cotto ed in laminato sul soppalco, impianto elettrico in corrugato con salvavita, appartamento termo-autonomo, alimentato con gas Metano, impianto termico in rame con radiatori in alluminio bianco, caldaia della “Riello” posizionata all'interno, cassone di riserva idrica in acciaio, il tetto del fabbricato ed i solai, in legno, sono stati completamente rinnovati.
La Richiesta è di Eu. 70.000,00
Contratto Vendita
Rif IMMO-124949165
Prezzo € 70.000
Provincia Roma
Comune Genzano di Roma
Indirizzo Piazza Vittorio Buttaroni 17">
Vani 2
Camere 1
Bagni 1
Classe energetica
G (DL 192/2005)
EPI 175 kwh/m2 anno
Piano 1 / 2
Riscaldamento autonomo
Condizioni abitabile
Anno di costruzione 1900
Cucina angolo cottura
| Descrizione | Superficie | Sup. comm. |
|---|---|---|
| Principali | ||
| Immobile - 1° piano | 44 Mq | 44 Mqc |
| Totale | 44 Mqc | |
Zoom della mappa
Apri con:
Apple Maps
Google Maps
Waze
Apri la mappa







